Трамвай ЛМ-68

Годы выпуска 1968-1975 г.г.
Выпущено 663 шт

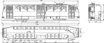
Технические характеристики

Мест для сидения 35
Напряжение сети 550 В
Количество дверей 3 (4+4+4)
Колея 1524 мм
Длина 15350 мм
Ширина 2550 мм
Высота 3150 мм
База 7500 мм
База тележки 1940 мм
Диаметр колёс 700 мм
Тип двигателя 4х
Мощность 4х45 кВт

Изображения

Трамвай ЛМ-68Трамвай ЛМ-68Трамвай ЛМ-68Трамвай ЛМ-68Салон трамвая ЛМ-68Салон трамвая ЛМ-68Чертеж трамвая ЛМ-68Чертеж трамвая ЛМ-68